АН АДРЕСА
Hohlova-adresa@yandex.ru
Скажите продавцу, что вы нашли объявление на 156.ru
1
/
3
8 700 000 ₽
6
Подгородняя Покровка
АН АДРЕСА
Семейная ипотека 6%
Ипотека под строительство Жилой дом 129 кв.м. Подгородняя Покровка Планировка продумана до мелочей.
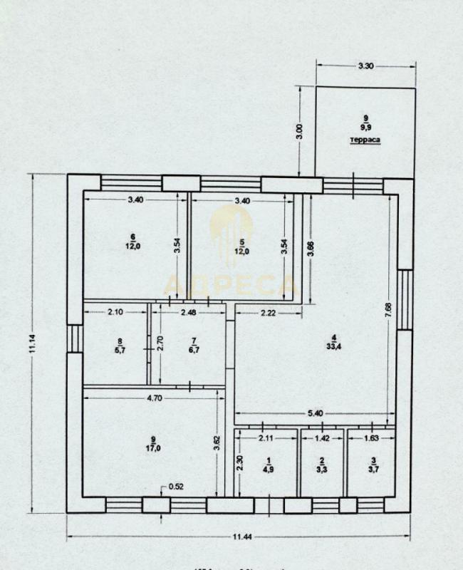
-Кухня гостиная 33,4 кв.м. с выходом на террасу; -Два санузла, отдельная котельная; - Три изолированные комнаты 12 кв.м, 12 кв. м., 17 кв. м; О доме: - фундамент свайно-ростверковый; -крыша: металлочерепица; -материал стен: керамзитоблок; -терасса залита;- входная дверь с терморазрывом.Инфраструктура: - в шаговой доступности школа и детский сад; -магазины;-автошкола;-Оренбургский аграрный колледж; -Асфальтированные дороги; -Удобный выезд из поселка.Альтернативные направления: Ленина, Заречье, Соловьи, Марьино, Нежинка, Ростоши, Пригородный, Ивановка, Приуралье
ID объекта в нашей базе: 1579
Тип недвижимости
Адрес
Этажность
Площадь
Дом
Россия, Оренбургская обл, Подгородняя Покровка, ул. Российская,44
1
129
ID объявления
Обновлено
Создано
Действительно до
818796
2026-01-27 05:37:51
2026-01-27 05:37:51
2026-04-27 05:37:51
2 500 000 ₽
3-комн. квартира
Оренбургская обл, г Новотроицк, ул Винокурова, д 12

1 300 000 ₽
1-комн. квартира
Оренбургская обл, г Новотроицк, ул Железнодорожная, д 59

1 990 000 ₽
2-комн. квартира
Оренбургская обл, г Новотроицк, ул Мира, д 12

4 880 000 ₽
3-комн. квартира
Оренбургская обл, г Новотроицк ул Лысова д. 10

150 000 ₽
Земельный участок
Оренбургская одласть.Кувандыкский р-н.п.Сара

2 450 000 ₽
2-комн. квартира
Оренбургская обл, г Новотроицк, ул Советская, д 128

2 650 000 ₽
2-комн. квартира
Оренбургская обл, г Новотроицк, ул Зеленая, д 53

2 950 000 ₽
4-комн. квартира
Оренбургская обл, г Новотроицк, ул Уральская, д 17

4 200 000 ₽
3-комн. квартира
Оренбургская обл, г Новотроицк, Комсомольский пр-кт, д 48

1 600 000 ₽
2-комн. квартира
Оренбургская обл, г Новотроицк, ул Суворова, д 7

1 100 000 ₽
2-комн. квартира
Оренбургская обл, г Новотроицк, ул Губина, д 18

5 200 000 ₽
Дом
Оренбургская обл, г Новотроицк, ул Луговая

1 700 000 ₽
2-комн. квартира
Оренбургская обл, г Новотроицк, ул Мичурина, д 8

950 000 ₽
1-комн. квартира
Оренбургская обл, г Новотроицк, ул Фрунзе, д 22

2 445 000 ₽
2-комн. квартира
Оренбургская обл, г Новотроицк, ул Советская

6 500 000 ₽
3-комн. квартира
Оренбургская обл, г Новотроицк, ул Советская, д 97
договорная
3-комн. квартира
Оренбургская обл, г Новотроицк, ул Уметбаева, д 7

3 850 000 ₽
4-комн. квартира
Оренбургская обл, г Новотроицк, ул Советская, д 57

1 700 000 ₽
2-комн. квартира
Оренбургская обл, г Новотроицк, ул Марии Корецкой, д 30

2 500 000 ₽
3-комн. квартира
Оренбургская обл, г Новотроицк, ул Мира, д 3

2 500 000 ₽
3-комн. квартира
Оренбургская обл, г Новотроицк, ул Железнодорожная, д 71

2 500 000 ₽
2-комн. квартира
Оренбургская обл, г Новотроицк, ул Советская, д 136

10 000 000 ₽
Дом
Оренбургская обл, г Новотроицк, поселок Аккермановка, ул Березовая

2 600 000 ₽
2-комн. квартира
Оренбургская обл, г Новотроицк, ул Строителей, д 6